Термошкаф ТШ-10 предназначен для установки в нём телевизионного либо другого электронного оборудования, в том числе выполненного в конструктивах для установки в 19-дюймовую стойку и поддержания заданного температурного режима при эксплуатации этого оборудования.
Термошкаф оборудован:
- блоком управления климатом (БУК-4), предназначенным для управления холодным запуском аппаратуры, установленной в термошкафу, и обогревом;
- двумя обогревателями термошкафов ОТШ-300, оборудованными встроенными биметаллическими выключателями, ограничивающими температуру поверхности радиатора до +90°С;
- тамперным контактом для сигнализации о несанкционированном доступе.
Термошкаф выпускается по техническим условиям ТУ 26.30.50-077-31006686-2017.
По способу защиты человека от поражения электрическим током термошкаф соответствует классу I по ГОСТ 12.2.007.0-75.
Климатическое исполнение термошкафа соответствует УХЛ 1, 5 ГОСТ 15150. Степень защиты IP66.
ВНИМАНИЕ! К данному термошкафу не подходит "Замок для ТШ" арт.70012.
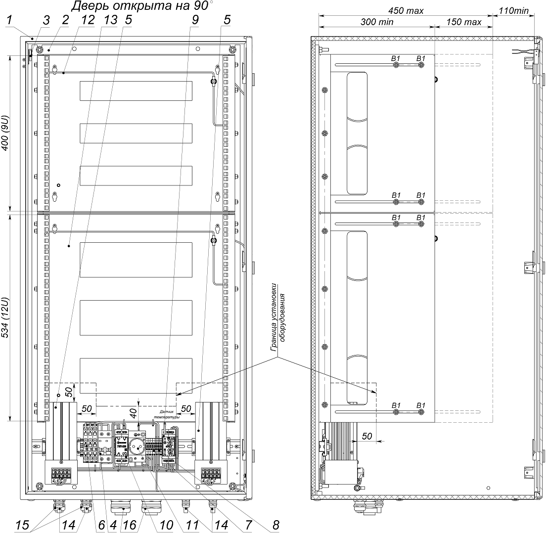
Устройство термошкафа

| 1. | Шкаф 600х760х600 | 1 шт. |
| 2. | Панель монтажная | 1 шт. |
| 3. | Тамперный контакт (S2) | 1 шт. |
| 4. | Выключатель автоматический ВА47-29 2P 10A/4,5кА характеристика С (S1) | 1 шт. |
| 5. | Обогреватель (ОТШ-200) | 2 шт. |
| 6. | Клеммы трехпроводные (Х1) (S провода до 16 мм²) | 3 шт. |
| 7. | Клеммы проходные (Х2) (S провода до 6 мм²) | 4 шт. |
| 8. | Клеммы заземления (Х3) (S провода до 6 мм²) | 3 шт. |
| 9. | Блок управления климатом (БУК-4) | 1 шт. |
| 10. | Устройство защиты питания 220 В (УЗП-220) | 1 шт. |
| 11. | Розетка 220В (XS1) | 1 шт. |
| 12. | Кронштейн крепления 19’’ оборудования 12U, глубина 300-450мм | 1 шт. |
| 13. | Кабельный ввод PBA11-10 – Ø кабеля 6-10мм | 6 шт. |
| 14. | Кабельный ввод PBA21-18 – Ø кабеля 13-18мм | 2 шт. |
| 15. | Кабельный ввод PBA36-30 – Ø кабеля 24-30мм | 2 шт. |
Схема электрическая принципиальная

“Все в одном флаконе” – оно вам надо? Или как правильно установить наружную камеру [Технологии защиты, № 02, 2021]
САМАЯ ЧЕСТНАЯ РЕКЛАМНАЯ СТАТЬЯ ПРО САМЫЕ БАНАЛЬНЫЕ ТЕРМОШКАФЫ
Климатические испытания. Что имеем и чем руководствоваться
| 1 | Питание термошкафа: |
| – напряжение питания | 220 В AC, 50 Гц |
| – максимальный ток нагрузки | 10 А |
| 2 | Обогрев: |
| – напряжение питания | 220 В AC, 50 Гц |
| – потребляемая мощность | 636 Вт |
| Диапазон рабочих температур | – 60 °С ÷ +50 °С |
| Диапазон регулирования температуры обогрева в термошкафу | -20 °С ÷ +15° С |
| Температура срабатывания тепловой защиты обогрева | +30 °С ± 3 °С |
| Температура срабатывания аварийной сигнализации | +70 °С ± 3 °С |
| Диапазон регулирования температуры холодного запуска аппаратуры | -30 °С ÷ +5 °С |
| 8 | Материалы и поверхности термошкафа: |
| – корпус | листовая сталь 2 мм, грунтовка, порошковое покрытие |
| – дверь | листовая сталь 2 мм, грунтовка, порошковое покрытие |
| – панель монтажная | листовая сталь 2 мм, оцинкованная |
| Полезная высота кронштейна крепления 19’’ оборудования: | 9U (400 мм) 12U (534 мм) |
| – глубина | 300-450 мм |
| Габаритные размеры (без гермовводов) | 600 х 1200 х 600 мм |
| Вес c упаковкой, не более | 90 кг |
Оплата
Оплатить заказ Вы можете безналичным переводом по реквизитам, указанным в выставленном счёте после оформления заказа.
Доставка
«Альянс групп»предоставляет полный комплекс услуг по доставке оборудования в любую точку страны, любым видом транспорта.
Получить приобретённый товар Вы можете удобным для Вас способом:
- Самовывозом с нашего склада, расположенного по адресу- г. Москва, 104 км. МКАД, д. 8А.
- Воспользоваться услугой доставки в пределах Москвы и Московской области. Заказ и согласование даты доставки осуществляется через Вашего менеджера.
Если сумма заказа превышает 50 тыс. рублей, доставка по одному адресу Получателя осуществляется БЕСПЛАТНО.
- Доставка заказа в регионы России осуществляется через транспортные компании. Доставка груза до транспортной компании производится нашим транспортом.
Тарифы доставки по Москве:
При сумме заказа менее 50 тыс. рублей, доставка по Москве осуществляется по тарифам зоны:
- зона 3 — 500 руб.;
- зона 1 — 1000 руб.;
- зона 2, 4 — 1500 руб.;
- зона 5 — 2000 руб
Транспортные компании, с которыми мы сотрудничаем:
- Деловые линии
- Байкал-Сервис
- СДЭК
- Энергия
- Другим удобным для вас способом по согласованию























