Не является публичной офертой
Видеокамера купольная взрывозащищенная сетевая КВ-1-IP-Н-ВБ-24VAC предназначена для визуального (на экране монитора) наблюдения охраняемых (контролируемых) объектов во взрывоопасных зонах. Область применения: обеспечение охраны, безопасности и контроля за технологическими процессами взрывоопасных и агрессивных производств нефтяной, нефтеперерабатывающей, нефтехимической, газовой, горнодобывающей и других промышленностей народного хозяйства. Место установки: наружные пространства и внутренние пространства помещений, порты, рудники и шахты, классифицированные как взрывоопасные зоны классов 1, 2, 21 и 22 (при классификации по зональному принципу), где возможно образование взрывоопасной смеси группы I и взрывоопасных газовых смесей подгрупп IIА, IIВ, IIC, пылевых сред подгрупп IIIА, IIIВ, IIIC, температурных классов Т1-Т6 или взрывоопасные зоны класса В-I, В-Iа, В-Iб, В-Iг согласно гл.7.3 ПУЭ.
Видеокамера выполнена в термокожухе ТКВ-1 НРП Ex – взрывонепроницаемая оболочка по ГОСТ 31610.0 (IEC 60079-0), ГОСТ IEC 60079-1, ГОСТ IEC 60079-31 с маркировкой взрывозащиты РB Ех db I Mb Х / 1Ex db IIC T6 Gb X / Ex tb IIIC T80°C Db X cо степенью защиты обеспечиваемой оболочкой – IP66/IP68 и по уровню защиты относится к взрывобезопасному электрооборудованию. Материал видеокамеры – нержавеющая кислотостойкая аустенитная сталь.
Видеокамера обеспечивает:
- автоматическое включение/отключение встроенного обогревателя в заданном диапазоне температур;
- защиту от холодного запуска IP-видеокамеры;
- охлаждение IP-видеокамеры при повышенных температурах (встроенные вентиляторы);
- две ступени мощности обогрева, что позволяет использовать изделие в разных климатических зонах в соответствии с ГОСТ 15150-69;
Видеокамера выпускается по техническим условиям ТУ 26.30.50-082-31006686-2020.
Видеокамера соответствует:
- техническим требованиям - ГОСТ Р 51558;
- требованиям по безопасности – ГОСТ Р МЭК 60065;
- требованиям по ЭМС – ГОСТ Р 50009, ГОСТ 30804.3.2, ГОСТ 30804.3.3;
- степени защиты от поражения электрическим током – III классу ГОСТ 12.2.007.0.
Климатическое исполнение видеокамеры соответствует УХЛ1, 5 ГОСТ 15150. Степень защиты IP66/IP68.
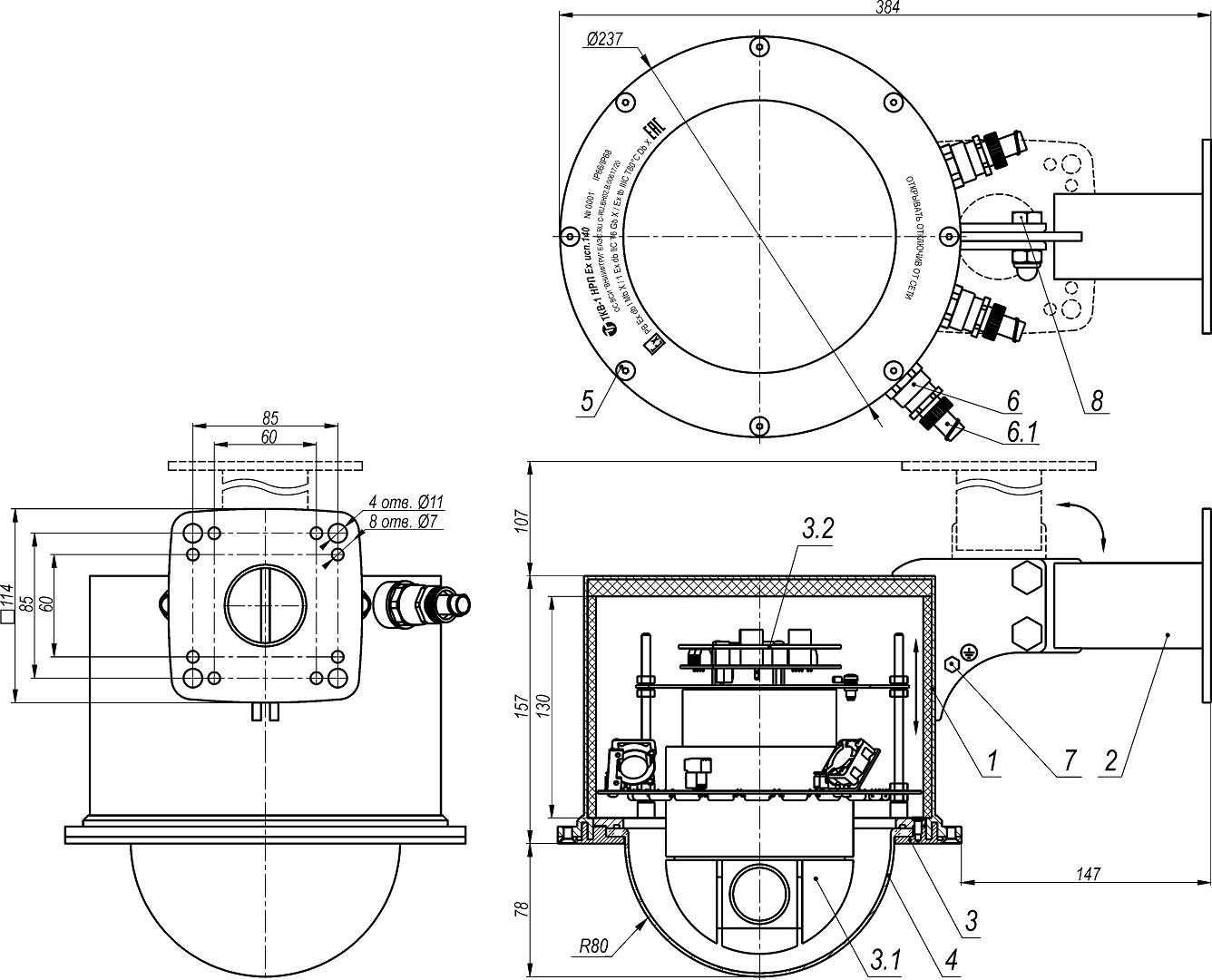
Габаритные и установочные размеры видеокамеры

| 1 | Видеокамера |
| 2 | Кронштейн |
| 3 | Модуль с IP-видеокамерой |
| 3.1 | IP-видеокамера |
| 3.2 | Плата коммутации |
| 4 | Сферическое стекло (купол) |
| 5 | Винты крепления модуля |
| 6 | Гермовводы для небронированного кабеля – Ø кабеля 3,2÷8,1**мм – 3 шт. (один гермоввод имеет заглушку) |
| 6.1 | Держатель металлорукава (РЗ-ЦХ-12 или МРПИ-12 – Øвн./Øнар=12/15 мм) |
| 7 | Болт заземления |
| 8 | Болт с гайкой крепления видеокамеры на кронштейн – 2 компл. |
** Гермовводы для кабелей другого диаметра и других металлорукавов, а также для бронированных кабелей устанавливаются по отдельной заявке.
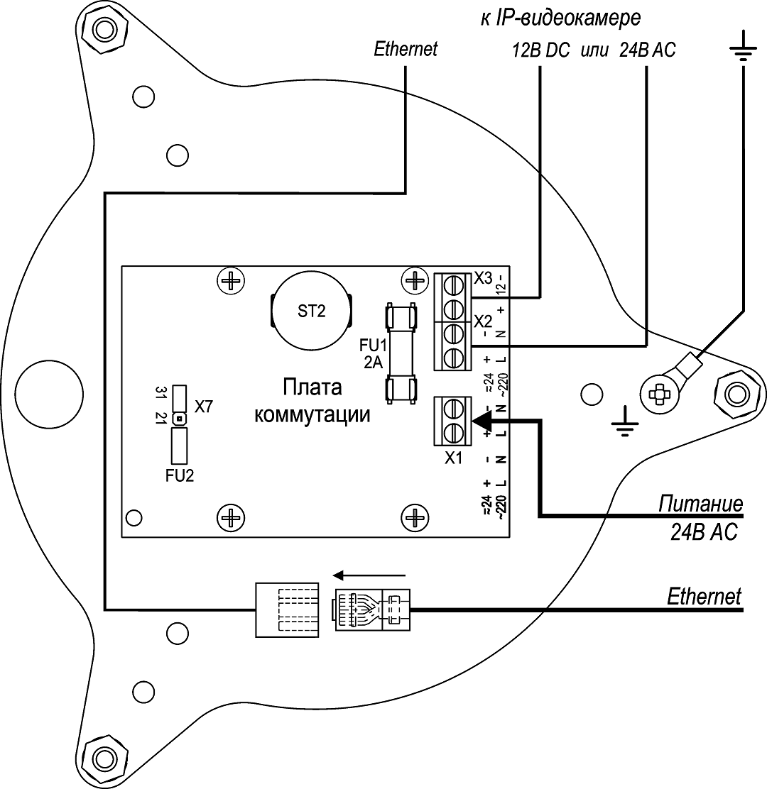
Схема подключения

ВИДЕОНАБЛЮДЕНИЕ ВО ВЗРЫВОПОЖАРООПАСНОЙ СРЕДЕ
СИСТЕМЫ ВИДЕОНАБЛЮДЕНИЯ ДЛЯ ПЕРИМЕТРА: СТАНДАРТНЫЕ ЗАДАЧИ — СТАНДАРТНОЕ ОБОРУДОВАНИЕ [Алгоритм безопасности № 2, 2019]
Питание всепогодных видеокамер – очень просто об очень важном
Климатические испытания. Что имеем и чем руководствоваться
Не плюй на… землю (неграмотный монтаж – залог отказа). [Алгоритм безопасности – спецвыпуск, 2002]
Что и как увидит ваша камера. [Алгоритм безопасности, декабрь 2001]
РoE – не панацея, а частный случай [Журнал ТЗ № 3 2013]
| Характеристика | Значение |
| Разрешение | 4MP (2592 x 1520) |
| Оптический зум | х30 |
| Чувствительность | 0,005 лк / F1.6 (цвет) 0,0005 лк / F1.6 (ч/б) |
| Скорость поворота | Поворот: до 500°/с наклон: до 500°/с |
| Напряжение питания | 24 В ±10% AC |
| Напряжение/ток внутреннего источника питания | 24 В ±10% AC / 1 А |
| Температура вкл./откл. обогрева | 20°С±3°С / 25°С±3°С |
| Мощность обогрева | 34 Вт |
| Максимальная потребляемая мощность | 57 Вт |
| Диапазон рабочих температур | – 60°С ÷ +60°С |
| Температура холодного запуска откл./вкл. | -10°С±3°С / -5°С±3°С |
| Влажность воздуха | до 100% при +25°С |
| Габаритные размеры | см. рис. |
| Вес с упаковкой | не более 8 кг |
| Режим работы | круглосуточный |
Оплата
Оплатить заказ Вы можете безналичным переводом по реквизитам, указанным в выставленном счёте после оформления заказа.
Доставка
«Альянс групп»предоставляет полный комплекс услуг по доставке оборудования в любую точку страны, любым видом транспорта.
Получить приобретённый товар Вы можете удобным для Вас способом:
- Самовывозом с нашего склада, расположенного по адресу- г. Москва, 104 км. МКАД, д. 8А.
- Воспользоваться услугой доставки в пределах Москвы и Московской области. Заказ и согласование даты доставки осуществляется через Вашего менеджера.
Если сумма заказа превышает 50 тыс. рублей, доставка по одному адресу Получателя осуществляется БЕСПЛАТНО.
- Доставка заказа в регионы России осуществляется через транспортные компании. Доставка груза до транспортной компании производится нашим транспортом.
Тарифы доставки по Москве:
При сумме заказа менее 50 тыс. рублей, доставка по Москве осуществляется по тарифам зоны:
- зона 3 — 500 руб.;
- зона 1 — 1000 руб.;
- зона 2, 4 — 1500 руб.;
- зона 5 — 2000 руб
Транспортные компании, с которыми мы сотрудничаем:
- Деловые линии
- Байкал-Сервис
- СДЭК
- Энергия
- Другим удобным для вас способом по согласованию























