Всепогодный узел коммутации ВУК-28У-PoE+ У11 У81

()

Всепогодный узел коммутации ВУК-28У-PoE+ У11 У81

Изображение товара

Всепогодный узел коммутации ВУК-28У-PoE+ У11 У81 предназначен для обеспечения работы от 1-го до 8-и оконечных IP-устройств с питанием по технологии РоЕ (IEEE 802.3af/at/bt), организации группового канала передачи данных по волоконно-оптической сети, а также поддержания заданного температурного режима при эксплуатации задействованного оборудования.

Изделие оборудовано

  • блоком управления климатом (БУК-5), предназначенным для управление обогревом;
  • обогревателем термошкафов ОТШ-40, оборудованным встроенным биметаллическим выключателем, ограничивающим температуру поверхности радиатора до +90°С;
  • устройством защиты электропитания УЗП-220 предназначенным для защиты оборудования, подключённого к линиям электропитания переменного тока 220 В, от наведенных напряжений, вызванных электромагнитными импульсами высоких энергий (грозовыми, электростатическими разрядами и т.д.);
  • блоком защиты БЗЛ-ЕП4х2, предназначенным для защиты от импульсных перенапряжений 8-и портов локальной сети Ethernet 10/100/1000 Base-TX, в том числе, использующих технологию PoE (IEEE 802.3af/at/bt);
  • AC/DC преобразователем 230/48-55В, 240Вт;
  • тамперным контактом для сигнализации о несанкционированном доступе.

Изделие выпускается по техническим условиям ТУ 26.30.50-077-31006686-2017.
По способу защиты человека от поражения электрическим током изделие соответствует классу I по ГОСТ 12.2.007.0-75.

Климатическое исполнение изделия соответствует УХЛ1, 5 ГОСТ 15150-69. Степень защиты IP 66.

Состав изделия:

Всепогодный узел коммутации ВУК-28У-PoE+ У11 У81. Изображение  1

 

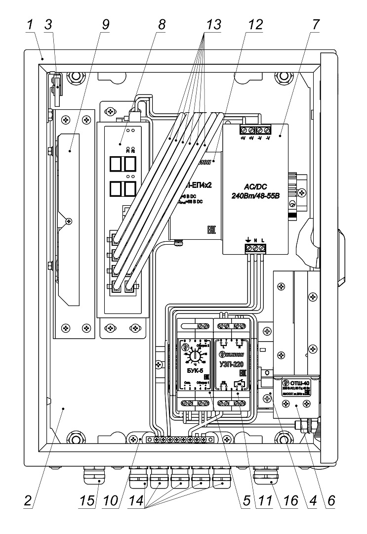
 1. Шкаф 300х300х210мм 1шт.
 2. Монтажная панель 1шт.
 3. Тамперный контакт (S2) 1шт.
 4. Выключатель автоматический ВА47-29 2P6A/4,5кА хар-ка С "TDM" (S1) 1шт.
 5. Блок управления климатом (БУК-5) 1шт.
 6. Обогреватель (ОТШ-40) 1шт.
 7. Устройство защиты питания 230В (УЗП-220) 1шт.
 8. AC/DC преобразователь 230/48-55В, 240Вт 1шт.
 9. Управляемый PoE коммутатор 8 портов Eth + 4 порта SFP 1шт.
 10. Патч-корд UTP, кат.5е 8шт.
 11. Оптический кросс с адаптерами SC-SC (4 шт.) 1шт.
 12. Шина заземления (Ш1) 1шт.
 13. Блок защиты портов в сети ETHERNET c питанием РоЕ (БЗЛ-ЕП4x2) 1шт.
 14. Гермоввод PBA9-08, Ø кабеля 4,5-8 мм 8шт.
 15. Гермоввод PBA11-10, Ø кабеля 6-10 мм 2шт.
 16. Гермоввод PBA13,5-11, Ø кабеля 7-12 мм 2шт.

Схема подключения:

Всепогодный узел коммутации ВУК-28У-PoE+ У11 У81. Изображение  1

 

“Все в одном флаконе” – оно вам надо? Или как правильно установить наружную камеру [Технологии защиты, № 02, 2021]

СИСТЕМЫ ВИДЕОНАБЛЮДЕНИЯ ДЛЯ ПЕРИМЕТРА: СТАНДАРТНЫЕ ЗАДАЧИ — СТАНДАРТНОЕ ОБОРУДОВАНИЕ [Алгоритм безопасности № 2, 2019]

САМАЯ ЧЕСТНАЯ РЕКЛАМНАЯ СТАТЬЯ ПРО САМЫЕ БАНАЛЬНЫЕ ТЕРМОШКАФЫ

Климатические испытания. Что имеем и чем руководствоваться


ПараметрЗначение
  1. Питание изделия: 
       – напряжение питания230 В AC, 50 Гц
       – максимальный ток нагрузки6 А
  2. Обогрев: 
       – напряжение питания230 В AC, 50 Гц
       – потребляемая мощность40 Вт
  3. Диапазон рабочих температур – 60 °С ÷ +50 °С
  4. Интерфейсы: 
      – порт 10/100/1000 Base-T RJ-45 PoE, watchdog8 шт.
       – порт 1000 Base-X SFP4 шт.
       – консольный порт1 шт.
  5. PoE: 
       – по стандарту PoE IEEE 802.3af/at6 портов
       – по стандарту PoE IEEE 802.3af/at/bt2 порта
       – общий бюджет PoE*230 Вт
  6. Максимальная потребляемая мощность290 Вт
  7. Материалы и поверхности изделия: 
       – корпус (дверь)листовая сталь 1,25 (1,5) мм, грунтовка, порошковое покрытие
       – панель монтажнаялистовая сталь 2 мм, оцинкованная
  8. Габаритные размеры (без гермовводов) ШхВхГ300х400х210 мм
  9. Вес c упаковкой15 кг

Тахион
128300

Не является публичной офертой

Описание

Всепогодный узел коммутации ВУК-28У-PoE+ У11 У81 предназначен для обеспечения работы от 1-го до 8-и оконечных IP-устройств с питанием по технологии РоЕ (IEEE 802.3af/at/bt), организации группового канала передачи данных по волоконно-оптической сети, а также поддержания заданного температурного режима при эксплуатации задействованного оборудования.

Изделие оборудовано

  • блоком управления климатом (БУК-5), предназначенным для управление обогревом;
  • обогревателем термошкафов ОТШ-40, оборудованным встроенным биметаллическим выключателем, ограничивающим температуру поверхности радиатора до +90°С;
  • устройством защиты электропитания УЗП-220 предназначенным для защиты оборудования, подключённого к линиям электропитания переменного тока 220 В, от наведенных напряжений, вызванных электромагнитными импульсами высоких энергий (грозовыми, электростатическими разрядами и т.д.);
  • блоком защиты БЗЛ-ЕП4х2, предназначенным для защиты от импульсных перенапряжений 8-и портов локальной сети Ethernet 10/100/1000 Base-TX, в том числе, использующих технологию PoE (IEEE 802.3af/at/bt);
  • AC/DC преобразователем 230/48-55В, 240Вт;
  • тамперным контактом для сигнализации о несанкционированном доступе.

Изделие выпускается по техническим условиям ТУ 26.30.50-077-31006686-2017.
По способу защиты человека от поражения электрическим током изделие соответствует классу I по ГОСТ 12.2.007.0-75.

Климатическое исполнение изделия соответствует УХЛ1, 5 ГОСТ 15150-69. Степень защиты IP 66.

Состав изделия:

Всепогодный узел коммутации ВУК-28У-PoE+ У11 У81. Изображение  1

 

 1. Шкаф 300х300х210мм 1шт.
 2. Монтажная панель 1шт.
 3. Тамперный контакт (S2) 1шт.
 4. Выключатель автоматический ВА47-29 2P6A/4,5кА хар-ка С "TDM" (S1) 1шт.
 5. Блок управления климатом (БУК-5) 1шт.
 6. Обогреватель (ОТШ-40) 1шт.
 7. Устройство защиты питания 230В (УЗП-220) 1шт.
 8. AC/DC преобразователь 230/48-55В, 240Вт 1шт.
 9. Управляемый PoE коммутатор 8 портов Eth + 4 порта SFP 1шт.
 10. Патч-корд UTP, кат.5е 8шт.
 11. Оптический кросс с адаптерами SC-SC (4 шт.) 1шт.
 12. Шина заземления (Ш1) 1шт.
 13. Блок защиты портов в сети ETHERNET c питанием РоЕ (БЗЛ-ЕП4x2) 1шт.
 14. Гермоввод PBA9-08, Ø кабеля 4,5-8 мм 8шт.
 15. Гермоввод PBA11-10, Ø кабеля 6-10 мм 2шт.
 16. Гермоввод PBA13,5-11, Ø кабеля 7-12 мм 2шт.

Схема подключения:

Всепогодный узел коммутации ВУК-28У-PoE+ У11 У81. Изображение  1

 

“Все в одном флаконе” – оно вам надо? Или как правильно установить наружную камеру [Технологии защиты, № 02, 2021]

СИСТЕМЫ ВИДЕОНАБЛЮДЕНИЯ ДЛЯ ПЕРИМЕТРА: СТАНДАРТНЫЕ ЗАДАЧИ — СТАНДАРТНОЕ ОБОРУДОВАНИЕ [Алгоритм безопасности № 2, 2019]

САМАЯ ЧЕСТНАЯ РЕКЛАМНАЯ СТАТЬЯ ПРО САМЫЕ БАНАЛЬНЫЕ ТЕРМОШКАФЫ

Климатические испытания. Что имеем и чем руководствоваться


ПараметрЗначение
  1. Питание изделия: 
       – напряжение питания230 В AC, 50 Гц
       – максимальный ток нагрузки6 А
  2. Обогрев: 
       – напряжение питания230 В AC, 50 Гц
       – потребляемая мощность40 Вт
  3. Диапазон рабочих температур – 60 °С ÷ +50 °С
  4. Интерфейсы: 
      – порт 10/100/1000 Base-T RJ-45 PoE, watchdog8 шт.
       – порт 1000 Base-X SFP4 шт.
       – консольный порт1 шт.
  5. PoE: 
       – по стандарту PoE IEEE 802.3af/at6 портов
       – по стандарту PoE IEEE 802.3af/at/bt2 порта
       – общий бюджет PoE*230 Вт
  6. Максимальная потребляемая мощность290 Вт
  7. Материалы и поверхности изделия: 
       – корпус (дверь)листовая сталь 1,25 (1,5) мм, грунтовка, порошковое покрытие
       – панель монтажнаялистовая сталь 2 мм, оцинкованная
  8. Габаритные размеры (без гермовводов) ШхВхГ300х400х210 мм
  9. Вес c упаковкой15 кг
Характеристики
Артикул производителя:58021Бренд:ТахионСортировка для цены:1000Снято с производства:N

Оплата

Оплатить заказ Вы можете безналичным переводом по реквизитам, указанным в выставленном счёте после оформления заказа.

Доставка

«Альянс групп»предоставляет полный комплекс услуг по доставке оборудования в любую точку страны, любым видом транспорта.

Получить приобретённый товар Вы можете удобным для Вас способом:

  • Самовывозом с нашего склада, расположенного по адресу- г. Москва, 104 км. МКАД, д. 8А.
  • Воспользоваться услугой доставки в пределах Москвы и Московской области. Заказ и согласование даты доставки осуществляется через Вашего менеджера.

Если сумма заказа превышает 50 тыс. рублей, доставка по одному адресу Получателя осуществляется БЕСПЛАТНО.

  • Доставка заказа в регионы России осуществляется через транспортные компании. Доставка груза до транспортной компании производится нашим транспортом.

Тарифы доставки по Москве:


При сумме заказа менее 50 тыс. рублей, доставка по Москве осуществляется по тарифам зоны:

  • зона 3 — 500 руб.;
  • зона 1 — 1000 руб.;
  • зона 2, 4 — 1500 руб.;
  • зона 5 — 2000 руб

Транспортные компании, с которыми мы сотрудничаем:

Вас также может заинтересовать: